Connor at Greenhills - Floor Plans
Connor at Greenhills will consist of studio unit, 1 bedroom unit, 2 bedroom units and 3 bedroom units. Families looking to upgrade to a new condo unit for their growing needs and thriving lifestyle will find in Connor at Greenhills an invitation to live their dream vacation all year-round.
With fine quality finishes, large open plans, and abundant natural light and ventilation, an unparalleled quality of life is presented by every aspect of Connor at Greenhills.
The units in Connor at Greenhills are designed for families, giving the right amount of comfort and function. With a properly designed and constructed layout, it is a set-up that works for any family. With a reasonable price range, Ortigas and Company makes sure that what you get in Connor at Greenhills is more than your money's worth.
Connor at Greenhills is a good choice for Filipinos looking for simple yet elegant community living, those dreaming of having their own homes with their families, as Connor at Greenhills offers affordable condominium packages you can choose from.
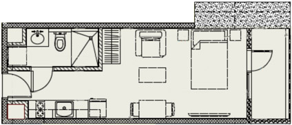
STUDIO FLOOR PLAN - 26 TO 30 SQM


1-BEDROOM UNIT FLOOR PLAN - 47 TO 58 SQM


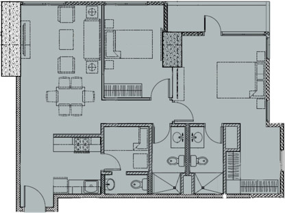
2-BEDROOM UNIT FLOOR PLAN - 80 TO 86 SQM


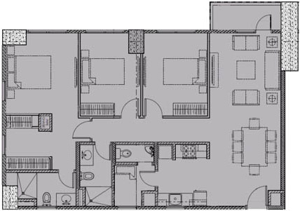
3-BEDROOM UNIT FLOOR PLAN - 106 TO 113 SQM




